相关文章  
  • 新型精炼加味食用香油
  • 新型精炼加味食用香油
  • 新型精炼加味食用香油
  • 快速抑洪船
  • 快速抑洪船
  • 汽车碰撞消力器
  • 汽车碰撞消力器
  • 汽车碰撞消力器
  • 密闭式穿刺治疗器
  • 密闭式穿刺治疗器
  •   推荐  
      科普之友首页   专利     科普      动物      植物        天文   考古   前沿科技
     您现在的位置在:  首页>>专利 >>专利推广

    快速抑洪船<%=id%>

    项目名称:

    快速抑洪船

    项目文件: 发明文摘及技术可行性分析
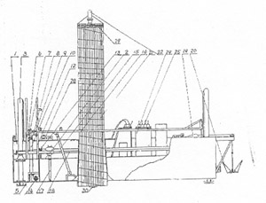
    快速抑洪船又名华龙神速抑洪艇(取中华 之龙能兵贵神速抑制洪水之意)本发明是 一种广泛用于抗洪中抢险堵决口的机械化设备,它的最大特点是神速和以水制 水,哪里出现决口把该设备运到现场,经快速对接停在决口前,可在1小时左右 将决口堵住,比1996年用8个日夜堵滹沱河决口和1998年用5个日夜堵九江决口, 所使用的当时世界上最先进的钢木结构技术快了若干倍。具体工作原理为在箱形 船体l(见图)上固定有四根升降立柱油缸3(见图)、斜支撑18(见图)和船锚20(见 图),可将船体1(见图)稳定地靠近决口和浮在水面上,打桩设备可一次或分两组 同时打一排5—10根桩,然后,用固定在暗舱内的卷帘14(见图)档在桩前控制 80%以上的急流,最后用灌满水的堵水布袋2l(见图)严实地堵住卷帘14(见图)漏 水处,堵决口使用的材料是水。还可以使用移动打桩装置依次打多排桩。该船结 构简单、功能多、快捷、效率高、省时、省力、安全可靠、减少了抗洪人员的辛 劳和伤亡、容易操作和制造、便于维修、成本低、堵决口的成功率极高。
    投产条件
    具有一定规模和技术的液压设备厂、起重设备厂或造船 厂,固定资产及流动资金 约1亿元。
    成本及利润评估
    每艘抑洪船成本约100万元,利润约 50万元。
    转让方式及条件
    合作开发或直接支付转让费伍仟万 元。
    备注

    展示时间: 2004-12-28-至-2007-12-28 9:08:39
    图片介绍:

    专利状态:
    申请号: 200310107079.X 申请日:
    公告日: 授权日:
    联系人及单位信息:
    地区: 天津市
    联系人: 刘振强
    地址: 天津市武清区广厦南里15楼4门407
    联系电话: 13803017383
    传真:
    邮政编码: 301700
    Email:
    网址:
         

          设为首页       |       加入收藏       |       广告服务       |       友情链接       |       版权申明      

    Copyriht 2007 - 2008 ©  科普之友 All right reserved